
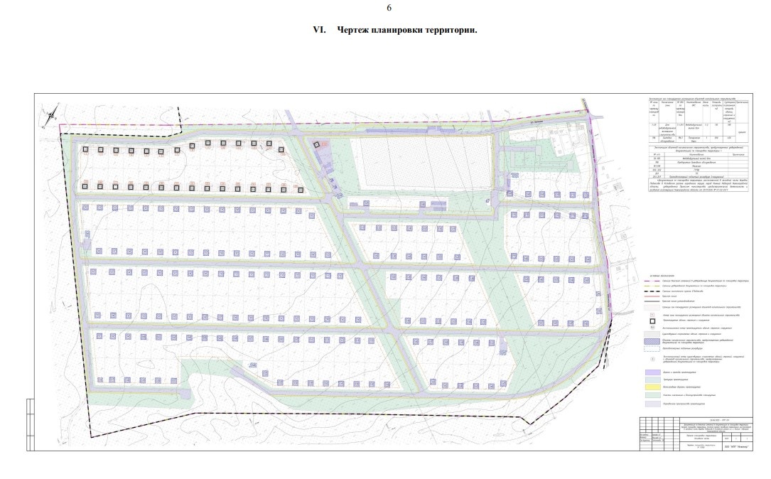
Новый микрорайон, состоящий из 195 частных домов, хотят построить в Кстовском районе к 2036 году. Он должен появиться в западной части деревни Подлесово. Минград Нижегородской области утвердил изменения в проекте планировки и межевания территории. Соответствующий приказ опубликован на сайте профильного министерства.
Напомним, в феврале 2024 года стало известно о том, что нижегородские власти определили участок площадью 41,1 га для строительства жилья многодетными семьями. На территории образуют 195 земельных участков, которые впоследствии передадут льготникам. Там построят дома высотой до двух этажей.
Документацию подготовило ООО «Научно-производственное предприятие «Инженер» по заказу администрации Кстовского района.
Строительство будет вестись в один этап. Жилые и общественно-деловые объекты возведут в срок до 2035 года включительно.
Кроме частных домов на участке появятся два магазина, предприятия общественного питания и бытового обслуживания. В микрорайоне построят дороги и велодорожки. Планируется возведение локальных очистных сооружений, парковок, детских и спортивных площадок, сквера. А возле кладбища появится похоронное бюро.
Ранее мы сообщали о том, что огромный микрорайон из 417 домов построят под Нижним Новгородом.
Самые интересные и срочные новости читайте в «В городе N»



